180 mq
4
2
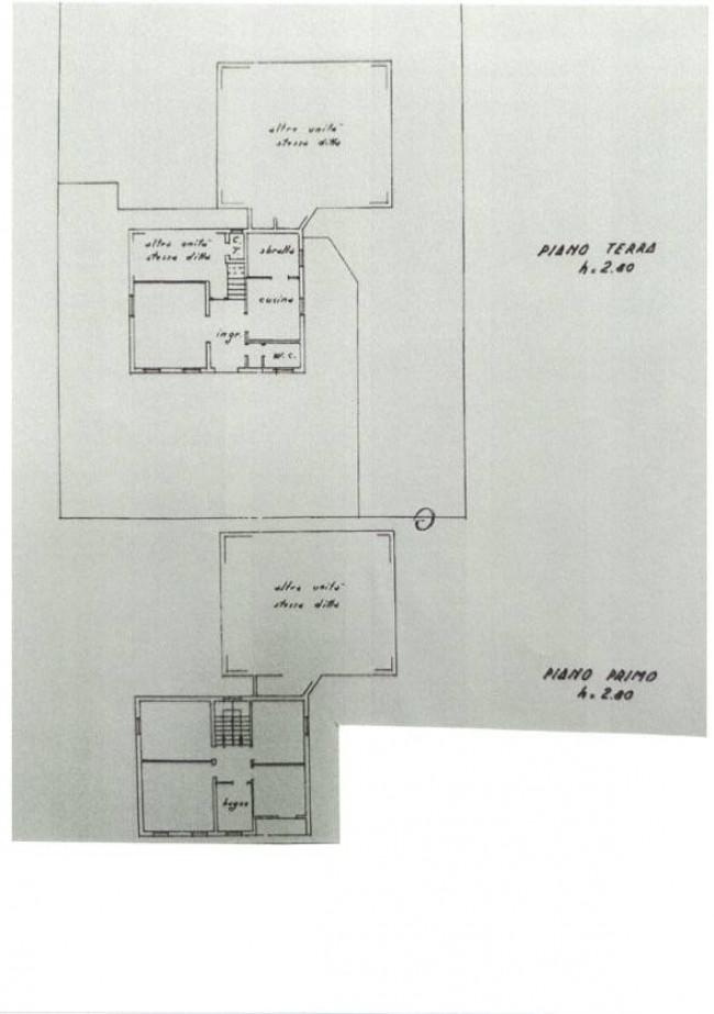
Treviso Santa Maria del Sile ottima posizione ai servizi. Vendesi porzione di bi familiare attaccata da una piccola appendice ad un'altra porzione.
Immobile ben tenuto ma necessita di ristrutturazione. Porzione dagli ampi spazi. Ampio ingresso, che divide. la zona giorno dalla zona cucina pranzo e bagno.
Al piano primo e ultimo ampi disimpegno, 4 camere da letto. Bagno rifatto. A completare l'immobile, scoperto privato di 250 mq , garage e locala caldaia.
Immobile libero da subito
Per informazioni chiamate LOVATO CASE Via Tolpada 4 Treviso 0422.1570008 - info@lovatocase.com rif. I/AL323 Sig. Lovato Adriano 331-5665904.
MPORTANTE
Lovato Case declina ogni responsabilità per eventuali imprecisioni nei dati pubblicati, inclusi disposizione interna e caratteristiche dell'immobile, che possono differire dallo stato reale. L'indirizzo indicato è generico e ha solo scopo orientativo.
Le informazioni non costituiscono vincolo contrattuale, ai sensi degli artt. 1337 e 2043 c.c. e nel rispetto del D.Lgs. 206/2005 (Codice del Consumo).

180 mq
4
2